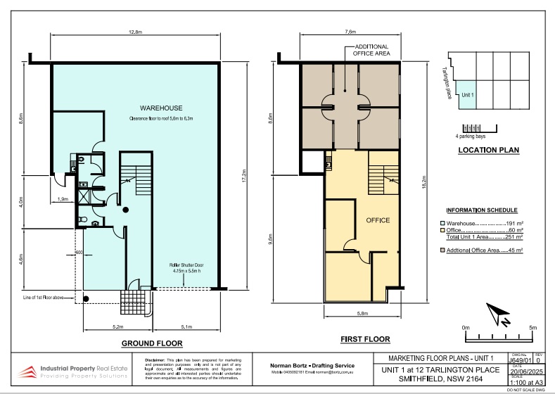
251SQM - EXCELLENT TRUCK ACCESS FOR LOADING & UNLOADING CONTAINERS
|
|
|
| |
|
| Property Type |
Industrial/Warehouse |
| Location |
Smithfield, NSW 2164 |
| Total Build Area |
251 M2 |
| Total Land Area |
TBA |
| Zoning |
IN1 General Industrial |
| Car Space |
4 |
| Outgoing |
TBA |
| Property ID |
733 |
Enquire Now Brochure
|
Description
Well presented Industrial unit providing container access via one (1) roller shutter door.
- High clearance clear span warehouse offering a clearance up 7.0m(approx.)
- Mezzanine office accommodation is air conditioned and offers good natural lighting.
- An additional 48sqm has been constructed to extend the original office component.
- Four (4) allocated parking spaces onsite.
- The complex benefits from dual access points and offers excellent truck manoeuvrability.
- Male & Female toilets with showering facility.
- Conveniently located with easy access to major motorways and the upcoming Western Sydney International Airport.
- Asking Sales Price: $1,450,000 + GST
- ORIGINAL UPSTAIRS OFFICE AREA: 60SQM
- WAREHOUSE/GROUND FLOOR AREA: 191SQM
- TOTAL ORIGINAL BUILDING AREA: 251SQM (APPROX)
+ ADDITIONAL UPSTAIRS OFFICE COMPONENT OF 48SQM
To inspect this site or for further information please contact:
Philip Tacca on 0403 268 594 or 9757 3999.