Industrial Property Real Estate
Telephone 02 9757 3999
Fax 02 9757 3992
Industrial Property Real Estate Industrial Property Real Estate

Property Search

Property Type

Building Area

Land Area


DEPOSIT TAKEN - 213SQM - TWO REMAINING UNITS - TO BE CONSTRUCTED - RETAIL LAYOUT

Property Type Retail
Location Wetherill Park, NSW 2164
Total Build Area 213 M2
Total Land Area TBA
Zoning 4C Bulky Goods Retail
Car Space Ample
Outgoing TBA
Property ID 363


Enquire Now

Description

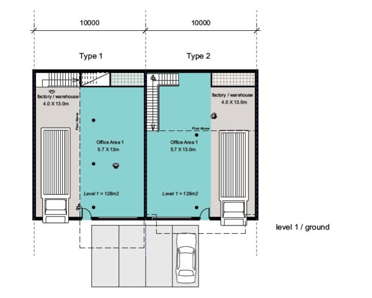
To be constructed  warehouse / office facility which provides container access via one (1) roller shutter door.
 
- Warehouse area offers an internal clearance approximately up to 7.5 metres.
 
- Dual access points to strata complex.
 
- Amenities with Kitchenette.
 
- Allocated onsite parking.
 
Office Area: 85 sqm
Ground Floor Footprint Area: 128sqm
Total Building Area: 213 sqm
 
To discuss price or to be provided with plans please contact:
Philip Tacca on 0403 268 594 or 9757 3999. 

Copyright © 2014 Industrial Property Real Estate. All Rights Reserved. Developed by Nexus Digital.

This information has been provided to us by third parties and we do not accept any responsibility for its accuracy. You should make your own enquiries and check the information so as to determine whether or not this information is in fact accurate. You must make your own assessment and obtain professional advice if necessary.