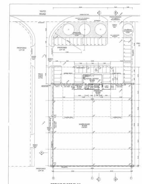
PRE LEASE OPPORTUNITY - 4,481SQM SITE - DA APPROVED FOR A 2,897SQM BUILDING
|
|
|
| |
|
| Property Type |
Land/Development |
| Location |
Prestons, NSW 2170 |
| Total Build Area |
0 M2 |
| Total Land Area |
4481 M2 |
| Zoning |
IN1 General Industrial |
| Car Space |
|
| Outgoing |
TBA |
| Property ID |
208 |
Enquire Now Brochure
|
Description
Located near Bernera Road, within the popular Industrial zoning of IN1.
- Direct access points to the M5 & M7 Orbital Network.
- Level & fully serviced corner site, regular in shape and ready to build.
- DA Approved Industrial warehouse/office facility of 2,897sqm.
- DA Approved plans can be provided upon request.
To inspect this site or for further information and to discuss the rental price please contact:
Philip Tacca on 0403 268 594 or 9757 3999.